회사소개
인사말
조직도
찾아오시는 길
사업영역
컨테이너
이동식주택
컨테이너 임대
제품소개
컨테이너
이동식주택
중고시장
온라인견적
고객지원
컨테이너
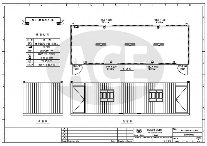
CB-10 3M x 9M
제품특징
크기
3M x 9M (27㎡, 8평형)
용도
사무실, 숙소, 휴게실 등.
골조자재
C - 형강
외벽마감재
Side Panel
내벽마감재
미장합판
지붕재
Roof Panel
바닥마감재
후로링 장판
단열재
30T Styrofoam
창호재
하이샷시
난방형태
옵션
기타